구성요소별자료 4 페이지
본문 바로가기
로그인
회원가입
사이트 내 전체검색
검색어 필수
검색
설계자료
공간별자료
구성요소별자료
캐드보조자료
짱캐드자료
디자인자료
컨셉자료
제안자료
마감재자료
문서자료
참고사이트
인테리어공간
시공자료
시공업체
공정별업체
문서자료
용어사전
커뮤니티
자유게시판
정보공유
개인 작품소개
지역별 업체추천
질문과답변
자료요청
자료업로드
업체등록
쇼핑몰
구성요소별자료
홈
설계자료
구성요소별자료
구성요소별자료 카테고리
전체
가구도면
문,창호도면
열린 분류
디테일도면
부분상세도면
업체도면
기타
Total 415건
|
4 Page
게시판 검색
디테일도면
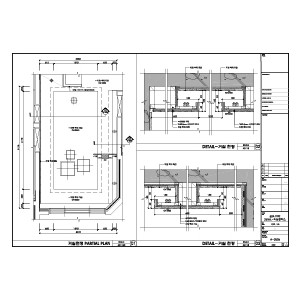
F-108. GB J JAPANESE RESTAURANT hal…
GB J JAPANESE RESTAURANT PROJECT NO : F-108 CONCEPT : JAPANESE RESTAURANT #.....
100Point
2021-09-07
7
디테일도면
F-108. GB J JAPANESE RESTAURANT 우드 …
GB J JAPANESE RESTAURANT PROJECT NO : F-108 CONCEPT : JAPANESE RESTAURANT #.....
100Point
2021-09-07
8
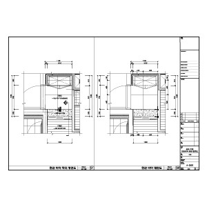
디테일도면
F-108. GB J JAPANESE RESTAURANT 대리석…
GB J JAPANESE RESTAURANT PROJECT NO : F-108 CONCEPT : JAPANESE RESTAURANT #.....
100Point
2021-09-07
2
디테일도면
F-108. GB J JAPANESE RESTAURANT 대리석…
GB J JAPANESE RESTAURANT PROJECT NO : F-108 CONCEPT : JAPANESE RESTAURANT #.....
100Point
2021-09-07
2
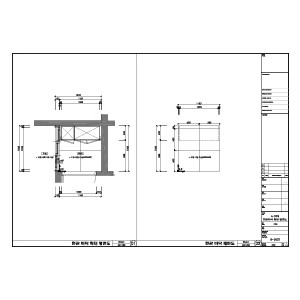
디테일도면
F-108. GB J JAPANESE RESTAURANT 대리석…
GB J JAPANESE RESTAURANT PROJECT NO : F-108 CONCEPT : JAPANESE RESTAURANT #.....
100Point
2021-09-07
4
디테일도면
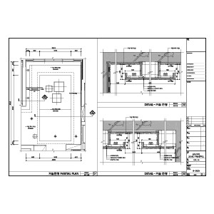
F-108. GB J JAPANESE RESTAURANT 홀 바…
GB J JAPANESE RESTAURANT PROJECT NO : F-108 CONCEPT : JAPANESE RESTAURANT #.....
100Point
2021-09-07
5
디테일도면
F-98. MA HOUSE 101동 천정디테일
MA HOUSE PROJECT NO : F-98 CONCEPT : TOWN HOUSE # DATA SOURCE & CO.....
100Point
2021-08-30
11
디테일도면
F-98. MA HOUSE 101동 벽체디테일
MA HOUSE PROJECT NO : F-98 CONCEPT : TOWN HOUSE # DATA SOURCE & CO.....
100Point
2021-08-30
5
디테일도면
F-98. MA HOUSE 101동 바닥디테일
MA HOUSE PROJECT NO : F-98 CONCEPT : TOWN HOUSE # DATA SOURCE & CO.....
100Point
2021-08-30
3
디테일도면
F-96. Y P hair 3F천정 디테일
댓글
1
개
Y P hair PROJECT NO : F-96 CONCEPT : HAIR SHOP # DATA SOURCE & COP.....
100Point
2021-08-23
8
디테일도면
F-96. Y P hair 3F 벽체단면상세도
Y P hair PROJECT NO : F-96 CONCEPT : HAIR SHOP # DATA SOURCE & COP.....
100Point
2021-08-23
5
디테일도면
F-96. Y P hair 3F 바닥 디테일
Y P hair PROJECT NO : F-96 CONCEPT : HAIR SHOP # DATA SOURCE & COP.....
100Point
2021-08-23
1
디테일도면
F-96. Y P hair 2F 벽체단면상세도,난간상세도
Y P hair PROJECT NO : F-96 CONCEPT : HAIR SHOP # DATA SOURCE & COP.....
100Point
2021-08-23
6
디테일도면
F-96. Y P hair 1F 벽체단면상세도
Y P hair PROJECT NO : F-96 CONCEPT : HAIR SHOP # DATA SOURCE & COP.....
100Point
2021-08-23
5
디테일도면
F-96. Y P hair 1F 계단 디테일
Y P hair PROJECT NO : F-96 CONCEPT : HAIR SHOP # DATA SOURCE & COP.....
100Point
2021-08-23
8
디테일도면
F-96. Y P hair 1F 바닥 디테일
Y P hair PROJECT NO : F-96 CONCEPT : HAIR SHOP # DATA SOURCE & COP.....
100Point
2021-08-23
2
디테일도면
F-82. SI LOUNGE 벽체 상세도
SI LOUNGE PROJECT NO : F-82 CONCEPT : LOUNGE # DATA SOURCE & COPYL.....
100Point
2021-08-19
12
디테일도면
F-82. SI LOUNGE 바닥 상세도
SI LOUNGE PROJECT NO : F-82 CONCEPT : LOUNGE # DATA SOURCE & COPYL.....
100Point
2021-08-19
3
디테일도면
F-81. JJ APT 53 type 거실 등박스
JJ APT PROJECT NO : F-81 CONCEPT : APARTMENT # DATA SOURCE & COPYL.....
100Point
2021-08-17
3
디테일도면
F-81. JJ APT 53 type 거실 벽면
JJ APT PROJECT NO : F-81 CONCEPT : APARTMENT # DATA SOURCE & COPYL.....
100Point
2021-08-17
2
디테일도면
F-81. JJ APT 53 type 거실 아트월
JJ APT PROJECT NO : F-81 CONCEPT : APARTMENT # DATA SOURCE & COPYL.....
100Point
2021-08-17
1
디테일도면
F-81. JJ APT 53 type 현관바닥
JJ APT PROJECT NO : F-81 CONCEPT : APARTMENT # DATA SOURCE & COPYL.....
100Point
2021-08-17
2
디테일도면
F-81. JJ APT 50B type 거실 등박스
JJ APT PROJECT NO : F-81 CONCEPT : APARTMENT # DATA SOURCE & COPYL.....
100Point
2021-08-17
2
디테일도면
F-81. JJ APT 50B type 거실 벽면
JJ APT PROJECT NO : F-81 CONCEPT : APARTMENT # DATA SOURCE & COPYL.....
100Point
2021-08-17
3
디테일도면
F-81. JJ APT 50B type 거실 아트월
JJ APT PROJECT NO : F-81 CONCEPT : APARTMENT # DATA SOURCE & COPYL.....
100Point
2021-08-17
1
디테일도면
F-81. JJ APT 50B type 현관바닥
JJ APT PROJECT NO : F-81 CONCEPT : APARTMENT # DATA SOURCE & COPYL.....
100Point
2021-08-17
1
디테일도면
F-81. JJ APT 50A type 세면대 벽면
JJ APT PROJECT NO : F-81 CONCEPT : APARTMENT # DATA SOURCE & COPYL.....
100Point
2021-08-17
3
디테일도면
F-81. JJ APT 50A type 거실 등박스
JJ APT PROJECT NO : F-81 CONCEPT : APARTMENT # DATA SOURCE & COPYL.....
100Point
2021-08-17
2
디테일도면
F-81. JJ APT 50A type 거실 벽면
JJ APT PROJECT NO : F-81 CONCEPT : APARTMENT # DATA SOURCE & COPYL.....
100Point
2021-08-17
2
디테일도면
F-81. JJ APT 50A type 거실 아트월
JJ APT PROJECT NO : F-81 CONCEPT : APARTMENT # DATA SOURCE & COPYL.....
100Point
2021-08-17
1
디테일도면
F-81. JJ APT 50A type 현관바닥
JJ APT PROJECT NO : F-81 CONCEPT : APARTMENT # DATA SOURCE & COPYL.....
100Point
2021-08-17
1
디테일도면
F-55. SWC VILLA Atype 몰딩,걸레받이,커튼박스,…
SWC VILLA PROJECT NO : F-55 CONCEPT : VILLA # DATA SOURCE & COPYLI.....
100Point
2021-08-09
14
디테일도면
F-55. SWC VILLA Btype 거실 등박스
SWC VILLA PROJECT NO : F-55 CONCEPT : VILLA # DATA SOURCE & COPYLI.....
100Point
2021-08-09
1
디테일도면
F-55. SWC VILLA Btype 거실 벽면
SWC VILLA PROJECT NO : F-55 CONCEPT : VILLA # DATA SOURCE & COPYLI.....
100Point
2021-08-09
2
디테일도면
F-55. SWC VILLA Btype 거실 아트월
SWC VILLA PROJECT NO : F-55 CONCEPT : VILLA # DATA SOURCE & COPYLI.....
100Point
2021-08-09
2
디테일도면
F-55. SWC VILLA Btype 현관바닥
SWC VILLA PROJECT NO : F-55 CONCEPT : VILLA # DATA SOURCE & COPYLI.....
100Point
2021-08-09
2
디테일도면
F-55. SWC VILLA Atype 주방 벽면
SWC VILLA PROJECT NO : F-55 CONCEPT : VILLA # DATA SOURCE & COPYLI.....
100Point
2021-08-09
6
디테일도면
F-55. SWC VILLA Atype 세면대 벽면
SWC VILLA PROJECT NO : F-55 CONCEPT : VILLA # DATA SOURCE & COPYLI.....
100Point
2021-08-09
5
디테일도면
F-55. SWC VILLA Atype 거실 등박스
SWC VILLA PROJECT NO : F-55 CONCEPT : VILLA # DATA SOURCE & COPYLI.....
100Point
2021-08-09
1
디테일도면
F-55. SWC VILLA Atype 거실 아트월 판넬
SWC VILLA PROJECT NO : F-55 CONCEPT : VILLA # DATA SOURCE & COPYLI.....
100Point
2021-08-09
3
처음
1
페이지
2
페이지
3
페이지
열린
4
페이지
5
페이지
6
페이지
7
페이지
8
페이지
9
페이지
10
페이지
다음
맨끝
게시판 검색
게시판 내 검색
검색대상
제목
내용
제목+내용
글쓴이
글쓴이(코)
검색어
필수
검색
닫기